Používame cookies

Súbory cookie a ďalšie technológie sledovania používame na zlepšenie vášho zážitku z prehliadania našich webových stránok, na to, aby sme vám zobrazovali prispôsobený obsah a cielené reklamy, na analýzu návštevnosti našich webových stránok a na pochopenie toho, odkiaľ naši návštevníci prichádzajú. Viac info

 

Rodinný dom vo Vysokých Tatrách, obec Štôla, č. 2 Havran

Ulica: Štôla
Obec: Štôla
Okres: Poprad
Kraj: Prešovský kraj
Druh: Domy
Typ: Predaj
Typ domu: Rodinný dom
295 000 €

Popis nehnuteľnosti

✨ RODINNÝ DOM VYSOKÉ TATRY  - BÝVANIE SNOV POD TATRAMI✨

Realitná kancelária Tvoje bývanie Vám prináša jedinečnú príležitosť vlastniť moderný rodinný dom v malebnej obci Štôla, len na skok od ikonického Štrbského plesa (11 km) a Tatranskej Lomnice (17 km).
Táto novostavba ponúka výnimočné spojenie komfortu, kvalitných materiálov a nádherného prostredia priamo pod štítmi Vysokých Tatier.

🏡 NEHNUTEĽNOSŤ:

 •        Samostatne stojaci rodinný dom č. 2 – HAVRAN
 •        Úžitková plocha: 164,9 m² (vrátane neobytného podkrovia)
 •        Dve nadzemné podlažia + podkrovie
 •        Garáž a parkovanie pre viac áut
 •        Priestranná terasa a záhrada
 •        Kolaudácia v záverečnej fáze

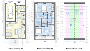
🔑 DISPOZÍCIA:

1. nadzemné podlažie – denné priestory
 •        Vstupná hala so šatníkom
 •        Otvorená obývacia izba s krbom pre pravú horskú atmosféru
 •        Prepojená kuchyňa s jedálňou a vstupom na terasu a do záhrady
 •        Garáž s priamym vstupom do domu
2. nadzemné podlažie – nočná časť
 •        2 priestranné spálne, každá s vlastnou kúpeľňou a WC
 •        Technická miestnosť
 •        Loggia s výhľadom na Tatry
 •        Vstup do podkrovia

🛠 KVALITNÉ MATERIÁLY:

 •        Murivo: Heluz Family – tehlové brúsené bloky so zvukovou izoláciou
 •        Strešná krytina: Bramac Tegalit Protector – elegantná čierna farba
 •        Podlahové sálavé vykurovanie pre maximálny komfort

🌟 BENEFITY:

 •        Projekt dopĺňa kaviareň, mini market a detské ihrisko priamo v lokalite
 •        Tichá obec Štôla – ideálna na rodinné bývanie alebo investičný prenájom
 •        V blízkosti cyklotrasy, turistické chodníky, bežkárske trate
 •        Príroda Tatranského národného parku na dosah

💰 CENA A SLUŽBY:
V cene je zahrnutý kompletný právny servis, príprava kúpnych zmlúv a vklad na kataster.
Radi vám tiež bezplatne vybavíme hypotéku na mieru s pomocou hypotekárneho špecialistu s viac ako 28-ročnou praxou

📞 Zavolajte nám ešte dnes a dohodnite si obhliadku!
Príďte sa presvedčiť, že bývanie pod Tatrami je nielen luxus, ale aj výborná investícia.

Vlastnosti

Status:
aktívne
Vlastníctvo:
osobné
Plocha pozemku:
168 m2
Typ zeme:
rovina
Teritórium:
Intravilán
Šírka pozemku:
7 m
Dĺžka pozemku:
24 m
Úžitková plocha:
164.9 m2
Zastavaná plocha:
86 m2
Podlahová plocha:
130.35 m2
Stav:
novostavba
Počet izieb:
3
Energetický certifikát:
A
Energetická náročnosť budovy:
Nízkoenergetický
Typ budovy:
tehla
Typ výbavy:
čiastočne vybavený
Loggia:
áno
Terasa:
áno
Garáž:
áno
Rok výstavby:
2025
Rok kolaudácie:
2025
Počet poschodí od prízemia vyššie:
1
Celková plocha:
164.9 m2
Plocha loggie:
6.615 m2
Počet logií:
1
Terasa plocha:
11.3 m2
Počet terás:
1
Počet garáží:
1
Plocha garáže:
17.21 m2
Orientácia:
západ
Inžinierske siete:
áno
Voda:
áno
Elektrika:
áno
Kanalizácia:
áno
Voda - na pozemku:
áno
Elektrika - na pozemku:
áno
Kanalizácia - na pozemku - kanalizácia:
áno
Vykurovanie - podlahové:
áno
Status:
aktívne
Vlastníctvo:
osobné
Plocha pozemku:
168 m2
Typ zeme:
rovina
Teritórium:
Intravilán
Šírka pozemku:
7 m
Dĺžka pozemku:
24 m
Úžitková plocha:
164.9 m2
Zastavaná plocha:
86 m2
Podlahová plocha:
130.35 m2
Stav:
novostavba
Počet izieb:
3
Energetický certifikát:
A
Energetická náročnosť budovy:
Nízkoenergetický
Typ budovy:
tehla
Typ výbavy:
čiastočne vybavený
Loggia:
áno
Terasa:
áno
Garáž:
áno
Rok výstavby:
2025
Rok kolaudácie:
2025
Počet poschodí od prízemia vyššie:
1
Celková plocha:
164.9 m2
Plocha loggie:
6.615 m2
Počet logií:
1
Terasa plocha:
11.3 m2
Počet terás:
1
Počet garáží:
1
Plocha garáže:
17.21 m2
Orientácia:
západ
Inžinierske siete:
áno
Voda:
áno
Elektrika:
áno
Kanalizácia:
áno
Voda - na pozemku:
áno
Elektrika - na pozemku:
áno
Kanalizácia - na pozemku - kanalizácia:
áno
Vykurovanie - podlahové:
áno

Informatívna úverová kalkulačka

Pozrieť na mape

Maklér

Mariana  Diežková

Mariana Diežková

maklér

  • Slovensky
  • Česky

Radi Vám poradíme

Podobné nehnuteľnosti