Používame cookies

Súbory cookie a ďalšie technológie sledovania používame na zlepšenie vášho zážitku z prehliadania našich webových stránok, na to, aby sme vám zobrazovali prispôsobený obsah a cielené reklamy, na analýzu návštevnosti našich webových stránok a na pochopenie toho, odkiaľ naši návštevníci prichádzajú. Viac info

 

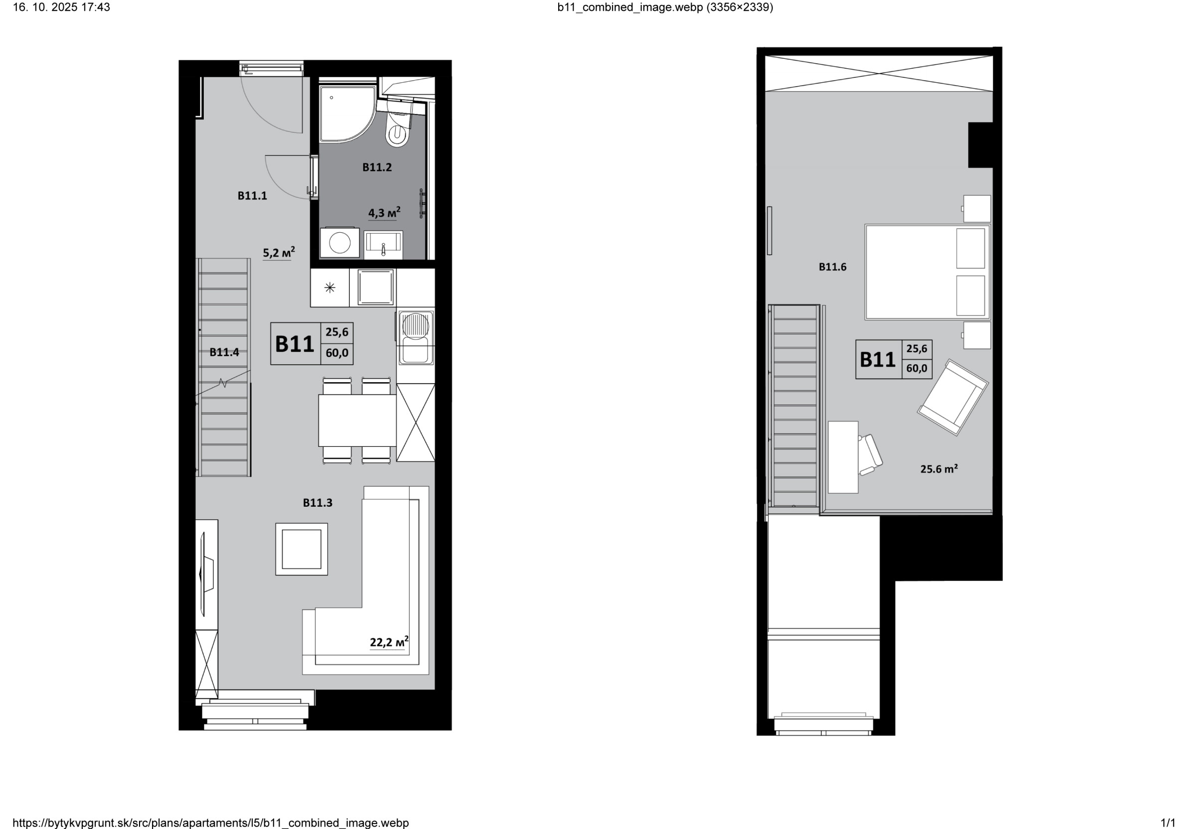
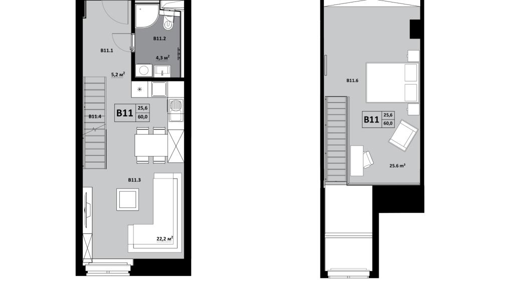
1 izbový byt s mezonetom KVP Grunt č. 11

Ulica: Trieda KVP 3112
Obec: Košice-Sídlisko KVP
Okres: Košice II
Kraj: Košický kraj
Druh: Byty
Typ: Predaj
Typ bytu: 1-izbový byt
209 900 €

Popis nehnuteľnosti

Ponúkame na predaj: Štýlové nové byty s príbehom – KVP Grunt

V exkluzívnom zastúpení vlastníka ponúkame na predaj 36 úplne nových bytov, ktoré vznikli po kompletnej a premyslenej prestavbe bývalého športového centra.

Budova prešla rekonštrukciou do posledného detailu – zachovala si len pevnú oceľovú konštrukciu, všetko ostatné je nové: moderná polkruhová strecha so zateplením, nové rozvody, priečky, kúrenie aj elektroinštalácia.

Vznikol tak originálny bytový projekt s industriálnym nádychom, v ktorom nájdete atypické malometrážne byty ideálne pre mladých ľudí, páry či ako investíciu na prenájom.

Byty sa nachádzajú na 3. a 4. podlaží obchodného centra KVP Grunt, s pohodlným prístupom po širokom schodisku priamo z nákupnej pasáže.

Na stránke projektu nájdete všetky byty s pôdorysmi, cenami a presnými výmerami:                                                                                                                                                                                  👉https://bytykvpgrunt.sk/

Ak hľadáte niečo netradičné, moderné a s výbornou dostupnosťou služieb, KVP Grunt vás určite zaujme.

Ďakujeme za Váš záujem a tešíme sa na stretnutie! 😊

Vlastnosti

Status:
aktívne
Vlastníctvo:
osobné
Úžitková plocha:
59.99 m2
Podlahová plocha:
59.99 m2
Stav:
novostavba
Počet izieb:
1
Energetický certifikát:
A
Energetická náročnosť budovy:
Nízkoenergetický
Typ budovy:
zmiešané
Typ výbavy:
holopriestor
Verejné vonkajšie parkovanie:
áno
Rok výstavby:
2025
Rok kolaudácie:
2026
Počet poschodí od prízemia vyššie:
5
Pozícia:
vyššie poschodie
Poschodie:
4
Celková plocha:
59.99 m2
Orientácia:
juh
Inžinierske siete:
áno
Voda:
áno
Elektrika:
áno
Kanalizácia:
áno
Voda - na pozemku:
áno
Elektrika - na pozemku:
áno
Kanalizácia - na pozemku - kanalizácia:
áno
Vykurovanie - centrálne:
áno
Status:
aktívne
Vlastníctvo:
osobné
Úžitková plocha:
59.99 m2
Podlahová plocha:
59.99 m2
Stav:
novostavba
Počet izieb:
1
Energetický certifikát:
A
Energetická náročnosť budovy:
Nízkoenergetický
Typ budovy:
zmiešané
Typ výbavy:
holopriestor
Verejné vonkajšie parkovanie:
áno
Rok výstavby:
2025
Rok kolaudácie:
2026
Počet poschodí od prízemia vyššie:
5
Pozícia:
vyššie poschodie
Poschodie:
4
Celková plocha:
59.99 m2
Orientácia:
juh
Inžinierske siete:
áno
Voda:
áno
Elektrika:
áno
Kanalizácia:
áno
Voda - na pozemku:
áno
Elektrika - na pozemku:
áno
Kanalizácia - na pozemku - kanalizácia:
áno
Vykurovanie - centrálne:
áno

Informatívna úverová kalkulačka

Pozrieť na mape

Maklér

Mariana  Diežková

Mariana Diežková

maklér

  • Slovensky
  • Česky

Radi Vám poradíme

Podobné nehnuteľnosti