Používame cookies

Súbory cookie a ďalšie technológie sledovania používame na zlepšenie vášho zážitku z prehliadania našich webových stránok, na to, aby sme vám zobrazovali prispôsobený obsah a cielené reklamy, na analýzu návštevnosti našich webových stránok a na pochopenie toho, odkiaľ naši návštevníci prichádzajú. Viac info

 

Rodinný dom vo Vysokých Tatrách, obec Štôla, č. 3 Solisko

Ulica: Štôla
Obec: Štôla
Okres: Poprad
Kraj: Prešovský kraj
Druh: Domy
Typ: Predaj
Typ domu: Rodinný dom
310 000 €

Popis nehnuteľnosti

RODINNÝ DOM VYSOKÉ TATRY - MALEBNÁ PODTATRANSKÁ OBEC ŠTÔLA

Realitná kancelária Tvoje bývanie Vám ponúka na predaj rodinný dom vo Vysokých Tatrách, v centrálnej časti obce Štôla, cca 3,3 km od diaľnice D1 - zjazd Mengusovce.

RODINNÝ DOM č. 3 SOLISKO
Rodinný dom v radovej zástavbe je oddelený od ďalších domov vlasnými obvodovými nosnými konštrukciami z brúsenej tehly Heluz Family a tepelnou a akustickou izoláciou z minerálnej vlny v hrúbke 30 cm. Rodinný dom je situovaných v centrálnej časti obce Štôla. Novostavba RD disponuje vlastnou garážou, parkovacími miestami pred domom, terasou a záhradou. Rodinný dom ma dve nadzemné podlažia. Tradičný tvar sedlových striech je typický pre podhorskú oblasť Vysokých Tatier.
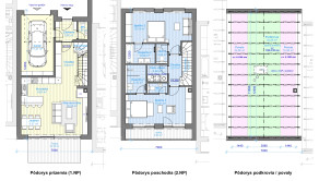
1.NP
Prvé podlažie pozostáva z dennej časti domu a garáže. Zo zádveria je prístup do chodby a do otvoreného spoločenského priestoru tvoreného obývacou izbou, jedálňou a kuchyňou, ako aj k schodisku na 2.NP. Medzi obývacou izbou a schodiskom je umiestnený krb. Z jedálne a obývacej izby je prístup na terasu a do záhrady.
2.NP
Druhé podlažie pozostáva z nočnej časti domu. Zo schodiska z 1.NP je cez chodbu prístup do dvoch spální. Každá spálňa má vlastnú kúpeľňu a vlastné samostatné WC. Na chodbe sa nachádza technická miestnosť. Jedna spálňa má loggiu. Z druhého podlažia je prístup do podkrovia rodinného domu.
Obvodové nosné konštrukcie sú riešené tehlovým murivom z brúsených tehál Heluz Family. Nenosné vnútorné priečky z tehlových zvukovo-izolačných tvárnic Heluz AKU. Strešná krytina je riešená z betónových strešných tašiek Bramac Tegalit Protector čiernej farby.
V rodinných domoch je riešené podlahové sálavé vykurovanie.

V súčasnej dobe pred ukončením a kolaudáciou
Úžitková plocha celkom (s neobytným podkrovím) = 164,90 m2

VÝHODY
Súčasťou projektu je novostavba polyfunkčného objektu – kaviarne s mini marketom a detským ihriskom. 
Obec Štôla sa nachádza v prekrásnom, tichom prostredí Tatranského národného parku. Nachádza sa 11 km od Štrbského plesa, 17 km od Tatranskej Lomnice. Je tu veľa možnosti športového vyžitia (beh, cyklistika, turistika, bežkovanie), Pre svoju výbornú polohu je vhodná aj ako investícia na prenájom. Príďte na obhliadku a určite si aj Vy túto lokalitu zamilujete. 

V cene máte zahrnuté všetky právne služby súvisiace s predajom nehnuteľnosti (kúpne zmluvy, návrh na vklad na kataster). V prípade záujmu o hypotekárny úver vám zabezpečíme bezplatný kompletný servis hypotekárnym špecialistom s vyše 28 ročnými skúsenosťami.

Vlastnosti

Status:
aktívne
Vlastníctvo:
osobné
Plocha pozemku:
168 m2
Typ zeme:
rovina
Teritórium:
Intravilán
Úžitková plocha:
164.9 m2
Zastavaná plocha:
86.14 m2
Podlahová plocha:
130.35 m2
Stav:
novostavba
Počet izieb:
3
Energetický certifikát:
A
Energetická náročnosť budovy:
Nízkoenergetický
Typ budovy:
tehla
Typ výbavy:
čiastočne vybavený
Loggia:
áno
Terasa:
áno
Garáž:
áno
Rok výstavby:
2025
Rok kolaudácie:
2025
Počet poschodí od prízemia vyššie:
1
Celková plocha:
164.9 m2
Plocha loggie:
6.615 m2
Počet logií:
1
Terasa plocha:
11.3 m2
Počet terás:
1
Počet garáží:
1
Plocha garáže:
17.21 m2
Orientácia:
západ
Inžinierske siete:
áno
Voda:
áno
Elektrika:
áno
Kanalizácia:
áno
Voda - na pozemku:
áno
Elektrika - na pozemku:
áno
Kanalizácia - na pozemku - kanalizácia:
áno
Vykurovanie - podlahové:
áno
Status:
aktívne
Vlastníctvo:
osobné
Plocha pozemku:
168 m2
Typ zeme:
rovina
Teritórium:
Intravilán
Úžitková plocha:
164.9 m2
Zastavaná plocha:
86.14 m2
Podlahová plocha:
130.35 m2
Stav:
novostavba
Počet izieb:
3
Energetický certifikát:
A
Energetická náročnosť budovy:
Nízkoenergetický
Typ budovy:
tehla
Typ výbavy:
čiastočne vybavený
Loggia:
áno
Terasa:
áno
Garáž:
áno
Rok výstavby:
2025
Rok kolaudácie:
2025
Počet poschodí od prízemia vyššie:
1
Celková plocha:
164.9 m2
Plocha loggie:
6.615 m2
Počet logií:
1
Terasa plocha:
11.3 m2
Počet terás:
1
Počet garáží:
1
Plocha garáže:
17.21 m2
Orientácia:
západ
Inžinierske siete:
áno
Voda:
áno
Elektrika:
áno
Kanalizácia:
áno
Voda - na pozemku:
áno
Elektrika - na pozemku:
áno
Kanalizácia - na pozemku - kanalizácia:
áno
Vykurovanie - podlahové:
áno

Informatívna úverová kalkulačka

Pozrieť na mape

Maklér

Ing. Václav Sedlatý

Ing. Václav Sedlatý

maklér

  • Slovensky
  • Česky
  • Deutsch

Radi Vám poradíme

Podobné nehnuteľnosti